Immogrundriss
Erfahren Sie, wie Sie professionelle 2D- und 3D-Grundrisse für Immobilienangebote erstellen können.

Grundrisse & Renderings zur Steigerung des Immobilienverkaufs
Schnelle Lernkurve mit umfangreicher Online-Wissensdatenbank
Fotorealistische 3D-Renderings für Immobilienvermarktung

Immobilien Grundrisse erstellen – Blitzschnell mit Cedreo
Sparen Sie Zeit und steigern Sie die Aufmerksamkeit Ihrer Immobilienangebote mit beeindruckenden Grundrissen für Ihre Exposés. Mit einer intuitiven Software, mit der Sie professionelle Grundrisse in Minuten statt Stunden erstellen können, war es noch nie so einfach, neue Kunden zu gewinnen.
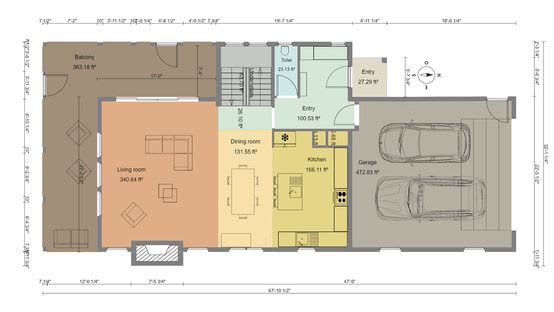
Mehr über Grundrisse erfahren2D Grundrisse für Immobilienvorlage
2D-Grundrisse für Immobilienangebote sind für Kaufinteressenten wichtig. Sie zeigen den Gesamtgrundriss und können genaue Abmessungen enthalten, die für die Planung des Raums wichtig sind. Und Grundrisse von Immobilien können sogar dazu beitragen, den Umsatz zu steigern, da die meisten Käufer eine Immobilie ohne Grundriss eher nicht in Betracht ziehen.
Mehr über 2D-Grundrisse erfahren

3D Grundrisse für Immobilienangebote
3D-Immobiliengrundrisse heben Ihre Angebote auf die nächste Ebene, da sie einen größeren visuellen Eindruck vermitteln als 2D-Pläne allein. 3D-Grundrisse zeigen nicht nur den Gesamtablauf eines Raums, sondern machen es den Käufern auch leicht, sich die Anordnung der Möbel, Farbschemata und Materialien vorzustellen.
Mehr über 3D-Grundrisse erfahrenGrundriss Immobilie zum Leben erwecken
Fotorealistische Entwürfe von Immobilien Vorlagen sind ein leistungsfähiges Instrument, das Sie in Ihr Verkaufsarsenal aufnehmen können. Es gibt nichts Besseres, um Kunden zu helfen, sich die Möglichkeiten eines Raums vorzustellen. Außerdem können Sie damit eine möblierte Version des Angebots präsentieren, auch wenn es sich derzeit nur um eine leere Wohnung oder ein unfertiges Haus handelt.
Mehr über 3D-Visualisierungen erfahren
Professionelle Grundriss Immobilien ganz einfach erstellen
Grundrisse für Immobilienmakler waren noch nie so einfach zu erstellen. Sie müssen kein CAD-Experte oder 3D-Designer mehr sein, um professionelle Grundrisse zu erstellen. Mit einer benutzerfreundlichen Plattform wie Cedreo können Sie 2D- und 3D-Grundrisse für Immobilienangebote in wenigen Minuten, nicht in Stunden, erstellen.

2D Grundriss zeichnen oder importieren
Importieren Sie einen vorhandenen Grundriss oder erstellen Sie einen neuen – mit Cedreo ist es in jedem Fall super einfach. Die intuitiven Zeichenwerkzeuge zeigen die Maße an, während Sie arbeiten, und lassen sich bei Bedarf einfach anpassen.

Grundstück zeichnen
Sie können dann den Garten hinzufügen. Importieren Sie einen Lageplan, oder zeichnen Sie die Grenzen ein. Fügen Sie Landschaftselemente, Einfahrten, Decks, Terrassen und sogar einen Pool hinzu.

2D Grundriss personalisieren
Fügen Sie Möbelsymbole Fenster und Türen hinzu und kodieren Sie Räume farblich, damit die Pläne für Käufer leicht zu lesen sind.

Einrichten und dekorieren
Wählen Sie aus mehr als 3.000 anpassbaren Einrichtungsgegenständen, um einen Raum zu schaffen, der Ihre Zielkunden anspricht. Sie sind spät dran mit dem Einstellen eines Angebots? Nutzen Sie die vorgefertigten und stilspezifischen Produktpaketen, um einen Raum mit einem einzigen Klick, zu dekorieren.

Fotorealistische Renderings erstellen
Erstellen Sie fotorealistische Renderings in professioneller Qualität, um Kunden zu beeindrucken. Passen Sie einfach die Tageszeit und die Sonnenausrichtung für präzise Lichteffekte an und senden Sie Ihr Rendering zur Bearbeitung ein.

Herunterladen und teilen
Grundrisse für Immobilienmakler sollten einfach zu teilen sein. Deshalb können Sie mit Cedreo Pläne und Renderings in eine Vielzahl gängiger Formate exportieren – jpeg, png, pdf.
Immobilien Grundriss Beispiele
Wir haben einige Beispiele gesammelt, die Sie sich ansehen können. Lassen Sie sich von ihnen zu Ihrem nächsten Projekt inspirieren.

Hausgrundrisse

Wohnungsgrundrisse

Bungalow

2-Schlafzimmer-Haus

3-Schlafzimmer-Grundriss

Villa

Tiny Haus Grundriss

Landschaftsplan
Häufig gestellte Fragen
Was sind die Vorteile einer Grundriss-Software für Immobilienmakler?
Atemberaubendes Bildmaterial und genaue Grundrisse sind für den Verkauf und das Marketing von Immobilien sehr hilfreich. Sie helfen den Kunden, sich vorzustellen, wie sie im Raum leben, und schaffen eine emotionale Bindung. Die Weitergabe von Bildern in Marketing-Materialien verleiht den Angeboten neuen Schwung und Interesse.
Was sind die gängigsten Arten von Immobilien Visualisierungen?
Die am häufigsten verwendeten Renderings für Immobilienvorlage sind: 2D- und 3D-Grundrisse, Innen- und Außenansichten und Landschafts-Renderings.
Wie kann ich Grundrisse und Renderings von Immobilien erstellen?
Für die Erstellung von Grundrissen und Renderings gibt es mehrere Möglichkeiten. Die erste Möglichkeit ist, das Projekt auszulagern, was teuer und zeitaufwendig sein kann. Sie könnten eine CAD-Software verwenden, aber sie erfordert eine Menge Training, an dem Sie vielleicht nicht interessiert sind. Oder Sie können eine 3D-Grundriss-Software wie Cedreo verwenden, die schnell und einfach ist!
Wie schnell kann ich Immogrundrisse erstellen?
Mit Cedreo können selbst Anfänger ohne Ausbildung individuelle Grundrisse und beeindruckende fotorealistische Renderings erstellen, um den Markt zu beeindrucken! Erstellen Sie komplette Grundrisse in nur 2 Stunden und beobachten Sie, wie sich Ihre Angebote schneller verkaufen als je zuvor!
Mehr über Grundrisse für Immobilien Exposés erfahren