Grundriss zeichnen
Schauen Sie sich an, wie ein 3D Grundriss gleichzeitig erstellt wird, während Sie in 2D zeichnen, und reduzieren Sie die Entwurfszeit um 50 %.
Grundriss zeichnen online – Schnell und einfach mit Cedreo
Sehen Sie sich drei verschiedene Arten von Grundrissen an, die Sie mit der Cedreo Hausplanung Software schneller als je zuvor erstellen können.
2D & 3D Grundrisse
Cedreo Hausplaner bietet intuitive Funktionen, mit denen Sie schnell komplette 2D-Grundrisse zecihnen können. Mit Cedreo können Sie mit einem Klick vom 2D-Grundriss zum 3D-Grundriss umwandeln. Die in 3D eingerichteten Räume geben einen realistischen und überzeugenden Eindruck vom Endergebnis und ermöglichen es Ihnen, vor dem Verkauf die Zweifel Ihrer Kunden zu bese

Lageplan / Geländemodellierung
Cedreo vereinfacht die Modellierung des natürlichen Geländes und die Gestaltung des fertigen Geländes. Mit wenigen Klicks definieren Sie Grundstücksgrenzen, Abstandslinien und die Lage der Bebauung, legen Höhenpunkte fest und verwalten die komplette Geländegestaltung in 3D. Erhalten Sie den maßstabsgetreuen Lageplan des Projekts.

Schnitte / Ansichten
Sobald das Gelände modelliert und die Grundrisse in Cedreo erstellt sind, können die Ansichten mit einem Klick erzeugt werden. Die Schnitte sind sehr einfach zu erstellen. Diese Pläne werden automatisch aktualisiert, sobald sich der Grundriss ändert, sie können jederzeit mit Anmerkungen versehen und heruntergeladen werden.

Grundriss erstellen – in weniger Zeit einen Grundriss selber zeichnen
Sie brauchen keine 3D-Kenntnisse, um selbst einen professionellen Grundriss zu erstellen.
Cedreo ist einfach zu bedienen — Wählen Sie einfach die Wandstärke und -höhe, um mit dem Zeichnen zu beginnen, oder importieren Sie einen bestehenden Grundriss, um darauf nachzuzeichnen, die Größe zu ändern oder das Projekt zu spiegeln, falls erforderlich. Anschließend können Sie den 3D-Grundriss mit einem Klick betrachten.
Funktionen, die für die Grundrissplanung mit Cedreo verfügbar sind:
- Wandstärke und Höhe auswählen
- Bemaßter Grundriss importieren, um darauf nachzuzeichnen
- Gleichzeitige 2D- & 3D-Ansichten
- Den Grundstück verwalten
- Unter- & Kellergeschoss erstellen
- Dachgeschossausbau
- Haus Grundriss mit der Veränderungsfunktion verkleinern oder vergrößern
- Das Grundriss mit einem Klick spiegeln
- Anzeige der Eckwinkelgröße
- Obergeschosse anzeigen/ausblenden

Alle Ihre Zeichnungen an einem Ort gespeichert
Sammeln Sie alle Pläne und Dokumente, die Sie für den Verkauf Ihrer Hausbau- und Renovierungsprojekte und für die Vorbereitung Ihrer Baugenehmigungsunterlagen benötigen.
Finden Sie für jedes Ihrer Projekte alle Teile an einem Ort zusammengefasst, auf dem neuesten Stand mit Ihren letzten Änderungen, jederzeit kommentierbar und herunterladbar:
- Lagepläne
- 2D- & 3D-Grundrisse
- Schnitte
- Ansichten
- Dachpläne
- Fotorealistische 3D-Visualisierungen
- Flächenberechnung-Tabelle

Dach automatisch und einfach einsetzen
Das Hinzufügen eines Daches ist mit Cedreo ganz einfach: Ein Klick genügt, um automatisch ein Dach hinzuzufügen. Wählen Sie aus einer umfangreichen Bibliothek von Dachziegeln, um das Projekt an die Bedürfnisse Ihrer Kunden anzupassen.
Dachfunktionen, die für alle Cedreo-Grundrisse verfügbar sind:
- Flach-, Sattel-, Pult-, und Walmdach automatisch einsetzen
- Automatische oder manuelle Einstellungen, um das Dach hinzuzufügen
- Vielfältige Gaubenformen
- Oberlichter & Dachfenster
- Dachrinnen und Fallrohre
- Wasserfangkasten
- Dachüberstände
- Traufe
- Große Auswahl an Dachabdeckung Möglichkeiten

Lassen Sie Ihre Teams an einem Projekt zusammenarbeiten
Sammeln und teilen Sie in einem einzigen Tool alle freigegebenen Pläne, die zur Bearbeitung bereit sind und dem Kunden präsentiert werden können.
Helfen Sie Ihren Teams, produktiver zu sein, mit dem Katalog für gemeinsam genutzte Grundrisse. Entwickelt, um sich an alle Teams anzupassen, verwenden Sie ihn, um Ihre modellierten Grundstücke oder Ihre Vorzeigeprojekte zusammenzufassen. Sobald diese Projekte gezeichnet und von der Konstruktionsabteilung freigegeben sind, können sie von den Verkaufsteams im Vorfeld des Verkaufs genutzt werden.

Das perfekte Programm für professionelle & darstellbare Grundrisse
Cedreo ist Ihr kompletter „Werkzeugkasten“ für die Erstellung kompletter Grundrisse in wenigen Minuten. Die Software verfügt über eine Vielzahl von Funktionen, die die Planungsphase beschleunigen und die Qualität des Entwurfs verbessern, um auch den wählerischsten Kunden zufriedenzustellen.

Einen Grundriss importieren
Importieren Sie einen vorhandenen Grundriss in einer Vielzahl von Formaten und beginnen Sie sofort mit dem Nachzeichnen.

In 2D zeichnen & in 3D visualisieren
Erstellen Sie einen Grundriss in 2D mit intuitiven Zeichnen-Funktionen und sehen Sie, wie er in einem 3D-Fenster zum Leben erwacht.

Grundstück erstellen
Importieren Sie ein Lageplan bzw. einen Grundstück Grundriss und zeichnen Sie Grundstücksgrenzen, um es zu visualisieren.

Grundriss-Symbole hinzufügen
Fügen Sie Grundriss-Symbole hinzu, um Elemente wie Fenster, Wände, Treppen und Möbel darzustellen.

Größe des Grundrisses ändern
Ändern Sie die Größe des gesamten Grundrisses mit nur wenigen Klicks – Sie müssen nicht mehr bei Null anfangen.

Bemaßung hinzufügen
Fügen Sie die Maße in einer schnellen und einfachen Tabelle an der Seite Ihres Grundrisses ein, um sie direkt an den Schlüsselelementen anzubringen, damit sich jeder Betrachter ein genaues Bild vom fertigen Produkt machen kann.

Zugriff auf eine Bibliothek von 3D-Objekten
Wählen Sie aus mehr als 9.000 anpassbaren 3D-Objekten, um Ihre Grundrisse zum Leben zu erwecken.

Grundrisse maßstabsgetreu in 300 dpi ausdrucken
Zeichnen Sie Ihre Grundrisse und drucken Sie sie maßstabsgetreu aus. Die Pläne können in 300 dpi heruntergeladen werden, um eine hohe Druckqualität zu erzielen.

Lagepläne & Grundrisse teilen
Laden Sie Ihre Grundrisse mühelos in mehrere Dateiformate herunter, um sie mit Kunden und Kollegen zu teilen, um sofort Feedback zu erhalten und Änderungen schnell vorzunehmen.
Grundriss Beispiele
Mit Cedreo können Sie einen Grundriss online erstellen, und das gilt für jeden Raumtyp! Die Farbcodierung hilft Kunden, Ihren Entwurf auf einen Blick zu verstehen

Schnitte mit Anmerkungen

Lageplan

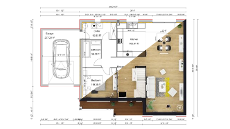
Haus Grundriss mit Garage

Bemaßter Grundriss

Grundriss mit Farben

Doppelhaus Grundriss
Wie Cedreo Ihrem Unternehmen zugute kommen kann?
Das Erstellen beeindruckender Grundrisse mit einer professionellen Grundrisssoftware trägt nicht nur dazu bei, den Verkaufszyklus zu verkürzen und eine einfache Kommunikation zu schaffen, sondern kann auch zur Verbesserung Ihrer Marketingstrategie verwendet werden.
Mehr darüber erfahrenDas sagen zufriedene Kunden über Cedreo
„Sehr gutes Produkt zu einem sehr guten Preis“
Einfache Bedienung, schnell zu erlernen. Mir gefällt die Kombination von 2D- und 3D-Ansichten und das einfache Umschalten zwischen beiden.
„Nützlich für die Immobilienvermarktung“
Mit Cedreo kann man in wenigen Stunden ein komplettes Projekt selber zeichnen, was wirklich viel Zeit spart!



