Three-bedroom container homes are transforming modern housing by offering affordable, sustainable, and eco-friendly alternatives to traditional home construction. With innovative layouts and multiple containers, home builders and designers like you can provide sufficient space while promoting sustainable living.
In this guide to creating your client’s dream 3 bedroom shipping container home, we’ll explore:
- Design strategies
- Cost factors
- How to optimize layouts and maximize space
Why trust us? Here at Cedreo, we’ve got 20+ years of experience working with housing pros in the home design space. So, we know what it takes for home builders, contractors, and designers to make 3-bedroom shipping container homes that impress clients and land you more jobs!
How Many Shipping Containers for a 3 Bedroom Container House?
The number of containers you choose depends a lot on your client’s needs and the desired layout. For example…
- Will this be a rental? If so you can get away with more cramped spaces.
- Will it be a vacation home? In this case, you don’t need as much room for storage and should give priority to comfortable living spaces.
- Is this a permanent home for long-term living? Then you need more space in bedrooms, closets, a laundry, a private master bath, and long-term storage.

Multiple Containers Needed for a 3 Bedroom Shipping Container House
Shipping containers come in a variety of lengths — 20 feet, 40 feet, and 53 feet. Standard containers have an 8-foot tall ceiling and high cube containers have 9.5-foot ceilings.
Regardless of the container size you choose, you will need multiple containers for a 3-bedroom home. Unlike smaller designs, a 3-bedroom layout simply can’t be achieved with just one standard 40-foot container. You’ll need at least two containers to provide ample space for a functional and enjoyable living space.
Here are some common combinations of multiple containers.
The minimum number of containers:
- Two 40-foot containers
- A 53-foot and a 20-foot container
- These two combinations can work, but space will be tight, and creative layout solutions are necessary.

The ideal number of containers:
- Three 40-foot containers: This is a budget-friendly setup that allows for a more spacious and comfortable layout with well-defined space for bedrooms, bathrooms, and common areas.
- Hybrid combinations: Combining a number of different-sized containers gives you virtually unlimited design versatility.
- Containers plus traditional construction: Another option is to use multiple containers with traditional construction elements. This could be in the form of 2 containers placed close to each other with the space in between enclosed with traditional construction elements.
Want to see what kind of 3-bedroom layouts you can create? Check out the next section.
5 Layout Options for a 3-Bedroom Shipping Container Home
Here are five smart 3-bedroom layouts that go from simple and budget-friendly to spacious and luxurious.
Two Container, Side By Side Layout

Ideal for: Tight budgets and small lots.
Design highlights:
- Long kitchen along one wall conserves space.
- Stackable washer and dryer eliminates the need for a separate laundry.
- Compact bathroom allows more space for a larger master bedroom
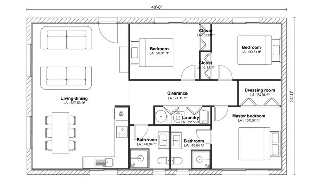
Three Containers, Side By Side Layout

Ideal for: Rentals and budget-conscious clients.
Design highlights:
- Perfect blend of space and affordability
- Open concept kitchen, living, and dining room provides a nice open feel.
- Enough space for two compact bathrooms.
- With a kitchen island, there’s plenty of workspace for cooking family meals.
- Place sliding glass doors and large windows to allow plenty of natural light into the open-concept area.
Four Container Spacious U-Shaped Layout With an Office

Ideal for: Families, work-from-homers, and long-term living
Design highlights:
- Two 40-foot containers and two 20-foot containers
- U shape creates a central courtyard. Cover this area to easily extend the usable living are during nice weather.
- Two main bedrooms are very private, have their own baths, and are accessed through the courtyard.
- Large pantry.
- Two smaller rooms that can be used as a bedroom and an office or storage.
Two-Container Hybrid Construction for Ample Space

Ideal for: Unique designs and extra space.
Design highlights:
- Two 40-foot containers set at an angle to one another.
- Flexible space between them can be enclosed with traditional construction methods.
- Easily place the containers closer or farther apart to adjust the size of the central living room.
Offset 3 Container Layout

Ideal for: Small families
Design highlights:
- Three 40-foot containers side by side. One is offset to provide a semi-protected space for patios or decks.
- Two bathrooms, one with easy access from the outside.
- Large closet in the master bedroom.
- Small study nook can double as a home office space.
How Many Bathrooms Can You Include in 3-Bedroom Container Homes?
A well-planned bathroom layout is essential for convenience and functionality in a 3-bedroom container home. While a single bathroom may save space and cost, most couples with kids who need a 3-bedroom home prefer at least two bathrooms.

Fortunately, you can include as many bathrooms as you want in a 3-bedroom container home. All you have to do is add more containers for more space.
Common Bathroom Configurations:
- One full bath + half bath – Budget-friendly, suitable for smaller households.
- Two full baths – Ideal for couples with kids.
- Ensuite master bath + shared bath – A luxury option that gives the primary bedroom a private retreat.
- Two and a half baths — Perfect for having private bathrooms for the bedrooms and a half bath powder room for guests.
Tips for Maintaining Comfort and Privacy in a Container House 3 Bedroom Layout
A 3-bedroom container home requires careful space planning to balance privacy, comfort, and efficiency. Here are a few tips to achieve that.
- Position bedrooms on opposite ends of the home or in separate containers for privacy. With more occupants, separating bedroom container locations offers vital personal space.
- Use light colors, mirrors, and vertical shelving to visually expand smaller spaces. Proper placement of shelving in the limited footprint helps the home feel spacious and provides more usable space.
- Designate a mudroom or entry zone. A dedicated entry area prevents clutter and provides a transition space for coats, shoes, and bags – especially important for larger families.
- Separate work or study areas with partition walls or foldable dividers. This provides a more dedicated space without having to make it its own room.
- Use high cube containers to take full advantage of that extra ceiling space. Not only does it make the space feel larger, but it gives you areas for lofted storage as well as larger cabinets and closets.
- Use pocket doors to reduce the space needed to accommodate swinging doors.

How Much Does a 3 Bedroom Shipping Container Home Cost?
Expect a wide cost range, from $75,000 to $250,000+ for a 3-bedroom container home. While potentially cheaper than traditional home builds, many factors influence the final price.
Key cost factors:
- Container source: Used one-trip containers ($3,000-$5,000 each) vs. new ($6,000-$10,000+). One-trip containers were only used once and in most cases just as durable as new ones.
- Modifications: Doors, windows, walls, structural work. Custom modifications add up fast. Multi level homes often need a structural engineer to ensure safety.
- Site: Shipping, labor, permit costs vary. Remote locations cost more to get containers transported to the site.
- Materials: Finishes, fixtures, insulation, utilities.
- Complexity: Customized designs increase cost and labor
- Land: Preparation for the site, foundation work, etc.
Why Use Cedreo to Design a 3-Bedroom Container Home?
Designing a 3-bedroom container home requires careful planning to optimize layout, space efficiency, and cost. With Cedreo’s intuitive design tools, builders and remodelers can draw visually appealing floor plans and realistic 3D renderings – all without complex CAD software.
You can also help your clients visualize your ideas so they can make faster and better design decisions. Here are some ways Cedreo helps you do that.

Quickly Create 2D & 3D Floor Plans
Cedreo’s drag-and-drop interface makes it easy to design and modify 2D floor plans in minutes. Adjust room sizes, reposition walls, and experiment with different arrangements to find the best fit – all while ensuring accurate dimensions. Then visualize the floor plan from above with a 3D perspective view thanks to 3D floor plans.

Visualize & Present Designs Professionally
Showcase container home designs in stunning detail with Cedreo’s photorealistic 3D renderings. These visuals help clients envision their future 3-bedroom shipping container home and speed up the approval process. Then combine 3D renderings with professional blueprints to create project presentations that impress clients.

Easily Adjust Layouts & Features
The floor plan software lets you quickly revise layouts, swap materials, or reposition elements without starting from scratch. This efficient revision process saves time, ensuring projects stay on track while keeping clients satisfied.

Easily Represent Shipping Containers in Your Designs
Quickly and accurately draw representations of shipping containers within your design, ensuring proper dimensions and facilitating modular planning. Cedreo helps you visualize how the containers will fit together and optimize the use of space. Watch this tutorial to see how it works.
Start Designing Your Client’s Dream Container Homes
A 3-bedroom container home is a cost-effective, customizable, and sustainable alternative to traditional housing. By choosing the right layout, container size, and comfort features, you can create functional, stylish homes that impress clients and win you more jobs!
Ready to streamline your container home designs?
Try Cedreo today for free and bring your client’s vision to life — faster and more efficiently.
3-Bedroom Container Home FAQs
How do I ensure my 3-bedroom container home is safe?
To ensure your 3-bedroom container home is say, prioritize structural integrity and safety! Have experienced laborers follow building codes when working with the steel containers. Consult a structural engineer for multi-level homes with stacked containers. Ensure modifications are made correctly in order to withstand harsh weather conditions. Choose quality insulation such as spray foam.
Are 3-bedroom homes with containers a cost-effective housing option?
Yes, shipping container homes often are a cost-effective option. They are considered a budget-friendly and eco-friendly investment for families. For many, they are an excellent route to obtaining their dream housing and promoting sustainability and reducing their carbon footprint.
How long does it take to build a 3-bedroom container home?
Unlike traditional home builds, construction for 3-bedroom homes made from cargo containers can be much quicker since the primary building material is pre-fabricated. The timeline will vary, but the relative time and resources committed to the build make 3-bedroom shipping container builds attractive.
Can I achieve thermal comfort in a 3-bedroom container home?
Yes! Proper insulation is crucial in container homes to ensure sustainability and a thermally comfortable living space, as the steel is prone to transmit heat and cold. Effective insulation such as spray foam or rigid foam in a corrugated shape that matches the container walls gives you more R-value in less space.
How customizable are 3-bedroom container homes?
The options for customizing these homes are limitless. These repurposed shipping containers can have normal doors, windows, flooring, and other features that allow great design versatility. And with multiple containers there are endless ways you can arrange and customize them.