Farmhouse Floor Plans
Create stunning farmhouse floor plans in under 2 hours
Wide variety of materials and furniture to bring the farmhouse feel to life
Generate photorealistic 3d visuals in under 5 minutes

Draw Modern Farmhouse Floor Plans, Faster
Farmhouses have a rustic charm that sells, but to get in on this, you need to be able to create gorgeous and detailed farmhouse floor plans.
Cedreo cuts farmhouse design time in half and requires no technical expertise. With a simple interface backed by powerful design tools, Cedreo empowers designers to create farmhouse floor plans that sell.
Learn more about Floor Plan Creator2D Farmhouse Floor Plans
Every great farmhouse started as a flat blueprint based on a 2D farmhouse floor plan. This version of the design may sound a bit boring compared to the final product, but 2D floor plans communicate some critical information about how the farmhouse is meant to be laid out and constructed. With a 2D floor plan, you get a top-down view of the home that shows every room and the structure’s positioning on the property.
Learn more about 2D Floor Plans

3D Farmhouse Floor Plans
Your 2D floor plan will spring to life in 3D when you render a 3D farmhouse floor plan. This version of the design is what it sounds like — it’s still a top-down view of the structure, but there is a third dimension that shows walls with cutaways and the interiors of rooms, as well as furnishings and decorations.
Learn more about 3D Floor PlansPhotorealistic Designs
The final step in farmhouse design is rendering a photorealistic version of the farmhouse you have designed and sharing it with clients and colleagues. Like the 3D version, the photorealistic floor plan is also 3D, but it adds high-definition detailing, customizable camera angles, exterior lighting, and much more. The end result is a rendering that sparks an emotional connection to the design in your client.
Learn more about photorealistic renderings
6 Important Farmhouse Floor Plan Considerations
What makes a house a farmhouse? Floor plans — that is, the details you include in the floor plan will determine whether the “farmhouse” aesthetic comes through clearly to your clients. These five important considerations should help with that:

Space and Flow
Small farmhouse plans can be just as charming and marketable as large farmhouses — if not more so. That’s because it’s all about how the internal space of the home is used, as well as its potential for expansion and rearrangement.
Plan your farmhouse designs to be appealing for families of a relatively wide variety of sizes. Don’t over-design the space — keep rooms simple and functional, and focus on flow from one room to the next, with each room having a defined and clear purpose.
Furniture and Decor
Even though the eventual inhabitants of the home will bring their own furnishings and decorations, how you decorate and furnish your digital representation of the farmhouse design is going to say a lot about the overall mood and tone of the home. Fortunately, the “farmhouse” vibe is relatively easy to capture in furniture and decoration styles — particularly if you use Cedreo’s pre-packaged, style-based furnishing and decoration collections.
Natural Light
Natural light needs to be a front-and-center consideration as you complete your farmhouse floor plans. Why? Because warm, inviting sunlight bathing the primary rooms and living spaces is a central feature of the modern farmhouse. Without natural light, you have a house — not a farmhouse.
Vaulted Ceilings
The traditional size and shape of farmhouses was such that vaulted ceilings became the norm. Today, even the most modern farmhouse floor plans feature vaulted ceilings. Sometimes called cathedral ceilings, these tall, arched ceilings add value and charm to any farmhouse design.

Porch
The first thing many of your clients will picture when they think of a farmhouse is sitting outside on the porch, perhaps in a rocking chair while sipping iced tea. It’s just a part of the aesthetic. So, give them what they want. Design a functional and beautiful porch to accompany your farmhouse.

Storage Space
One of the key features of farmhouse design is storage space. No matter how small or large a modern farmhouse may be, it needs to have room for all the essentials — whether that’s a pantry, broom closet, linen closet, or storage area.
To get the most out of your farmhouse floor plan, it’s important to consider how and where you can strategically integrate storage into the design for maximum function and aesthetics.
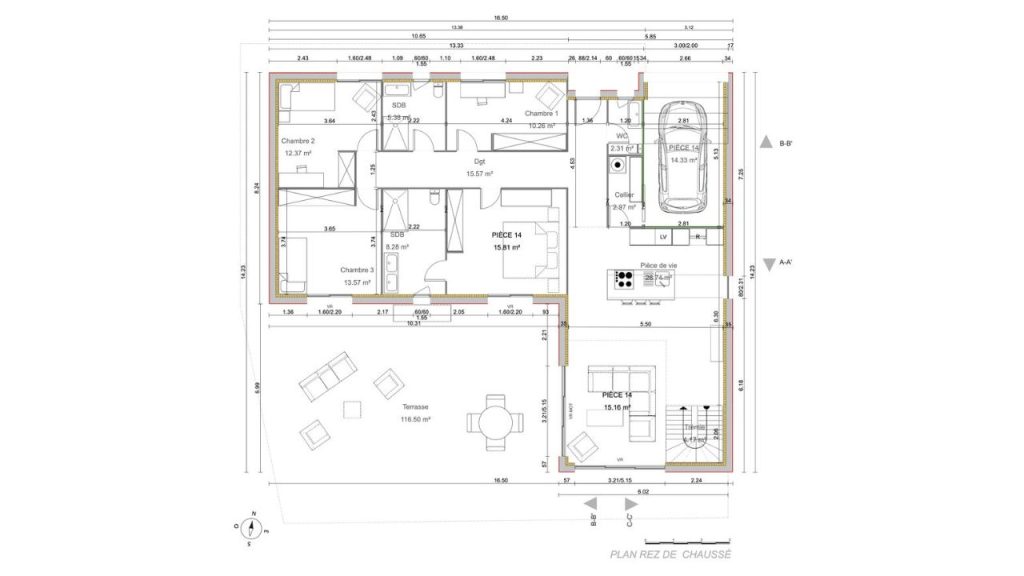
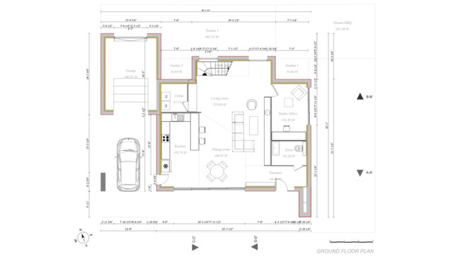
Farmhouse Plan Examples
From modern farmhouse floor plans to rustic designs and small farmhouse plans to larger-than-life plans, farmhouses can look a lot of different ways. Below, we have compiled some examples of farmhouses designed with Cedreo.

Modern Farmhouse Plans:
This type of farmhouse is growing in popularity and offers your property a modern, sleek look. Notable characteristics include open floor plans, tall ceilings, and large windows for plenty of natural light.

Contemporary Farmhouse Plans:
Updating the traditional farmhouse plan with up-to-date design elements is the hallmark of this style. Think contemporary aesthetics, boxy shapes, and minimalistic designs with large windows.

French Farmhouse Plans:
This type of plan is heavily influenced by the rural lifestyle of the French countryside. Notable features include steeply pitched roofs, stone accents, and arched windows.

Luxury Farmhouse Plans:
If you’re looking for an extra level of sophistication, select a luxury farmhouse plan. These plans feature all the classic elements as well as luxurious amenities like pools and outdoor kitchens. No matter which style is right for you, your home will be sure to impress with its timeless appeal.

Cottage Farmhouse Plans:
A combination of cottage and farmhouse styles perfectly balances rustic charm and modern functionality. Think cozy windows, sloped roofs, and brick or stone exteriors.

Bohemian Farmhouse Plans:
For a more eclectic look, bohemian farmhouse plans combine traditional elements with bold colors for an eye-catching design. Think bright accents, unique architectural shapes, and plenty of plants.

Western Farmhouse Plans:
These plans offer a classic touch that is popular in western states, including Texas and Oklahoma. Notable features include wraparound porches, dormer windows, and stone or brick accents.

Old Farmhouse Plans:
For those who prefer a classic look, old farmhouse plans provide plenty of traditional charm. These plans feature large porches that are often screened in and intricate detailing with wood and stone accents.
Farmhouse Design FAQs
There are often many questions associated with farmhouse design. Here are some of the most commonly asked questions and their answers.
What materials are used in a typical farmhouse design?
Farmhouse designs often use natural materials such as wood, stone, and brick. These materials are combined with modern accents like metal and glass to create a timeless aesthetic. Wood is often used for cabinetry, flooring, architectural details, and wall treatments while stone and brick serve to anchor the design. Metal is used in accents such as lighting fixtures, hardware, appliances. Finally, glass is incorporated into windows or doors to bring light into the space.
What kind of furniture should I use for a farmhouse style?
When it comes to selecting furniture for a farmhouse style, the most important thing is to choose pieces that are comfortable and practical. Look for chairs with cushioned seats, sofas with plush upholstery, and coffee tables that double as extra seating. Wooden or wicker pieces are great for providing a cozy atmosphere. Finally, incorporate some accents such as vintage rugs or deco pillows to give the room a finished look.
Are there any tips for decorating in a farmhouse style?
When it comes to accessorizing your home in a farmhouse style, the key is to keep it simple. Choose a few pieces of decor and use them to create visual interest by layering, repeating colors or patterns, and mixing textures. To bring the design together, add vintage accents such as a milk can or an antique mirror. Finally, consider incorporating natural elements like dried flowers or baskets filled with books for a touch of rustic charm.
How can I incorporate the farmhouse style into other rooms of my home?
The great thing about a farmhouse style is that it’s easy to incorporate into any room. For example, you could add some wall decor such as an old window frame or a distressed mirror in the living room. In the kitchen, install open shelving and use vintage-style crockery for a cozy look. In the bathroom, consider adding a clawfoot tub with wicker baskets for storage and a modern twist. Finally, in the bedroom, opt for cozy bedding with neutral tones and bring in some comfortable seating such as an armchair or a bench.