Rita 2D-planritningar
Snabbt och enkelt
Skapa professionella 2D-planritningar med Cedreos molnbaserade hemdesignprogram.
Rita enkelt din 2D-planritningar online tack vare en mängd intuitiva funktioner
Importera en befintlig 2D-planritningar och lägg till personliga mätningar
Generera 2D planritningsbilder effektivt, tillsammans med ytareatabells

Cedreo erbjuder allt dina kunder behöver se på en 2D-planritning
2D planritningsprogram är idealiskt för professionella husbyggare, renoverare, och inredningsdesigners. Skapa högkvalitativa 2D-planritningar som är lätta för kunderna att förstå och som hjälper dig att sälja fler husdesignprojekt.
En 2D-ritning utan perspektiv gör det möjligt att visa layouten klart och tydligt, med exakta mått och placeringar av väggar, dörrar, fönster och huvudmöbler, samt detaljer om ytorna.
Se hur enkelt det är att skapa 2D-planritningar med Cedreo!
- Använd musen för att snabbt rita en 2D-plan från grunden.
- Importera en befintlig skannad 2D-planritning i JPG- eller PNG-format.
- Rita över befintliga planritningar och designa nya med dörrar och fönster.
- Rotera eller spegla 2D-planritningar på en vertikal axel med ett klick.
- Duplicera bottenvåningens fotavtryck för att skapa nya nivåer.
- Ladda ner och skriv ut 2D-planritningar med både imperiska och metriska mått.
- Visa alltid uppdaterade ytatabeller.


Anpassa Dimensioner för 2D-planritningar
Spara dina planritningar som mallar och justera dem snabbt för varje ny kund. Ändra storlek genom att klicka och dra på de väggar du vill förstora eller förminska. Lägg till inre mått från vägg till vägg, och yta-tabellerna uppdateras automatiskt.
Justera planritningarna i realtid under möten med kunder för att snabba upp godkännandeprocessen.
Konvertera 2D-planritningar till 3D med ett enda klick.
2D-planritningar är det första steget i designprocessen för ditt hem. Cedreo’s användarvänliga program gör det enkelt att rita 2D-planer och konvertera dem till 3D-planer med ett enda klick.
Förbättra din 3D-huslayout med Cedreo’s bibliotek av material, möbler och annan inredning. Din designförslag blir ännu mer tilltalande med fotorealistiska 3D-planritningar.
Se hur du kommunicerar din vision med 3D-planritningar
Din heltäckande 2D planritningsprogram
Cedreo erbjuder alla funktioner du behöver för att skapa 2D-planritningar på en bråkdel av tiden – utan behov av tillägg eller plugins!

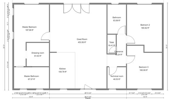
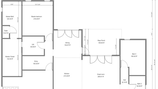
Svartvit 2D-planritning
Denna förenklade vy gör det möjligt att fokusera på husets layout. Den visar rumsnamn, mått, fönster- och dörröppningar, dörrens svängriktning, väggar och väggtjocklek.

2D-planritning med färgkodning
De färgkodade rummen och områdena gör denna version av planritningen lättare att förstå vid en snabb blick. Fönster- och dörröppningar är inte färgkodade, vilket gör att de framträder tydligt i denna vy.

2D-planritning med väggtyper
Denna version av planritningen visar olika väggtyper, vilket ger en tydligare uppfattning om byggstruktur och material.

2D-planritning med möbler
Denna detaljerade 2D-planritning visar placeringen av de viktigaste möblerna. Designern kan snabbt flytta eller redigera möbelikoner baserat på kundens feedback.

2D-planritning med tekniska symboler
Du kan lägga till symboler som visar placeringen av viktiga hemfunktioner såsom element, tvättmaskin- och torktumlarskopplingar, varmvattenberedare, eluttag och mer.

Yta-tabell
Denna tabell visar kvadratmetrar för varje rum, varje våning och för hela huset. Du kan även inkludera veranda, terrass och garage som tilläggsytor.
Funktioner för att skapa tydliga och exakta 2D-planritningar
Cedreo har alla verktyg du behöver för att skapa tydliga och exakta 2D-planritningar på några minuter. Följ sedan hur dina 2D-layouts blir levande i 3D i ett separat fönster.

Få Tillgång till Dina 2D-planritningar Online
Cedreo är 100 % online, så du kan ändra din design var du än är. Allt du behöver är en bärbar dator och internetuppkoppling.

Importera Planritningar
Importera en befintlig planritning eller starta ett nytt projekt. Klicka och dra för att kontinuerligt rita bärande väggar och rumdelningar. Vänsterklick för att snabbt lägga till hörn och vinklar.

Rita i 2D & Visa i 3D
Se en realistisk modell av din layout medan du skapar i 2D. Sidovy-fönster ger tydlighet och översikt under designprocessen.

Skapa Exteriör Layout
Rita tomtgränser eller importera en tomtkarta för att visualisera hela området.

Lägg till Planritningssymboler
Lägg till planritningssymboler som representerar element som fönster, väggar, trappor och möbler.

Ändra Storlek på Planritningar
Ändra storlek på hela planritningen med bara några klick – utan att behöva börja om från början.

Lägg till Mått
Lägg till mått i en lättläst tabell bredvid planritningen och markera dem direkt på viktiga element, så att alla kan få en exakt bild av det färdiga resultatet.

Rita och Skriv Ut
Rita 2D-planritningar på bara några minuter och skriv ut dem med hög precision varje gång.
Vanliga frågor
Vad är en 2D-planritning?
2D-planritningar är skisser som ger en tydlig översikt över en plats eller byggnad. De visar layouten, möbelplacering, väggtyper, dörrar, fönster, landskap och mått. Färgkodade planritningar hjälper till att särskilja olika rumstyper och layouten.
Vad är skillnaden mellan 2D- och 3D-planritningar?
2D-planritningar används främst för att visa tekniska detaljer som entreprenörer behöver för att slutföra projektet. Detta inkluderar information om bärande väggar, väggtyper, öppningars placering för fönster och dörrar, samt mått.
3D-planritningar erbjuder en mer realistisk visualisering som hjälper kunder att förstå hur designen ser ut i praktiken och hur deras möbler kommer att placeras i det nya utrymmet.
Kan jag skapa en planritning för ett helt hus?
Ja — Cedreo är en komplett lösning för husdesign som gör det möjligt att skapa planritningar för hela bostäder och deras olika våningar. Du kan enkelt lägga till övervåningar och källare genom att duplicera ytterväggarna, vilket säkerställer en sömlös och enhetlig layout.
Är 2D- eller 3D-planritningar bättre?
2D- och 3D-planritningar har olika syften. 2D-planritningar är utmärkta för att visa tekniska detaljer som väggmått, dörröppningars orientering och riktningar. De kan laddas ner och skrivas ut i skala. Däremot kan de vara mindre effektiva som säljverktyg, eftersom de ibland är svåra för kunder att läsa och förstå. Å sin sida ger fullt möblerade 3D-planritningar en realistisk upplevelse av husets layout och trafikflöde.