Niezależnie od tego, czy jesteś budowniczym domu, fachowcem od remontów czy ekspertem w dziedzinie projektowania wnętrz, praca z najlepszym oprogramowaniem do projektowania architektonicznego mieszkań i domów w 3D znacznie ułatwi Ci pracę.
Właściwy program do tworzenia planów i wizualizacji pomieszczeń pozwoli Ci o wiele więcej niż tylko zaoszczędzić czas, problemy i pieniądze. Przede wszystkim pomoże Ci zdobyć więcej klientów. Dlatego ważne jest, aby programy do projektowania i aranżacji wnętrz wybierać mądrze.
Na rynku dostępnych jest wiele programów i aplikacji pozwalających na projektowanie i wizualizacje projektu mieszkań i domów. Jak znaleźć ten, który będzie najlepszy dla Ciebie i Twojej firmy?
Po tej 10-minutowej lekturze dowiesz się wszystkiego, co musisz wiedzieć, aby dokonać właściwego wyboru.
Zaczynamy!
Jak wybrać najlepszy program do projektowania mieszkań?
Istnieje wiele różnych opcji oprogramowania, które pomogą Ci zaprojektować mieszkanie z szeroką gamą funkcji. Nie wszystkie będą właściwym wyborem dla Twojej firmy. Oto 5 rzeczy, na które warto zwrócić uwagę przy wyborze:
1. Użyteczność
Jak łatwy jest w użyciu? Czy potrzebujesz rozległego doświadczenia projektowego i lat nauki, aby zaplanować proste mieszkanie? Tak jest w przypadku wielu profesjonalnych programów do projektowania CAD lub BIM. Inne programy mogą nie mieć niektórych zaawansowanych funkcji, ale są łatwiejsze w użyciu.
2. Przystępność
Ile chcesz zainwestować w oprogramowanie do tworzenia planów? Duże firmy budowlane zazwyczaj przeznaczają budżet na drogie programy na cały zespół projektowy. Mniejsze firmy wykonawcze i osoby zajmujące się remontami domów chętniej korzystają z bardziej przyjaznego dla budżetu oprogramowania, które wciąż zawiera niezbędne narzędzia do projektowania.
3. Funkcjonalność
Do czego potrzebujesz programu? Czy tylko tworzysz plany 2D? Większość specjalistów zajmujących się mieszkalnictwem skorzystałaby także z dodatkowej funkcjonalności. Dlatego najlepiej szukać nowoczesnego oprogramowania do projektowania, takiego jak Cedreo.
Oprogramowanie takie jak Cedreo zapewnia ważne i łatwe w użyciu narzędzia, dzięki którym można zmieniać rozmiar planów pięter, dodawać wiele poziomów, rysować i drukować w skali oraz szybko obliczać powierzchnie. Ponadto Cedreo zapewnia wszystko, czego potrzebujesz, aby stworzyć rzuty 3D i fotorealistyczne wizualizacje.
4. Skalowalność
Czy narzędzie będzie w stanie dotrzymać kroku rozwojowi Twojej firmy? Poszukaj opcji łatwego dodawania kolejnych członków zespołu do swojego konta. I zwróć szczególną uwagę na cennik do skalowania funkcjonalności programu.
5. Język
Nawet mając najlepszą aplikację do planowania, będziesz pracować wydajniej nad swoimi projektami mieszkaniowymi, jeśli jest ona dostępna w języku polskim.
6. Wsparciek
Ponadto pamiętaj o rozważeniu dostępnych opcji pomocy, takich jak dostępność samouczków i filmów online. Co więcej, w przypadku niektórych programów zespół ds. obsługi klienta pomaga w realizacji projektów.
10 najlepszych rozwiązań do projektowania architektonicznego i aranżacji wnętrz (w tym kluczowe funkcje)
Przyjrzyjmy się 10 najlepszym programom do projektowania budynków mieszkalnych, aby pomóc Ci znaleźć to, które będzie najlepiej działać dla Twojej firmy. Zacznijmy od programu, na który decyduje się coraz więcej profesjonalistów zajmujących się mieszkalnictwem.
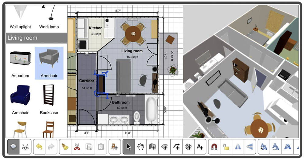
1. Cedreo

Cedreo to najlepszy program do projektowania mieszkań 3D, z którego korzysta coraz więcej budowlańców, fachowców od remontów i projektantów. Trudno znaleźć inny program z tak świetną kombinacją łatwych w użyciu narzędzi, które pomogą Ci swtorzyć projekt domu w 2D i 3D!
Z pomocą Cedreo w dwie godziny możesz zaprojektować cały dom od początku do końca, wraz z rzutami 2D i renderingami w formacie 3D!
Zaczyna się od intuicyjnego interfejsu, który zawiera zaawansowane i przydatne narzędzia. Zaimportuj istniejący plan piętra lub rozpocznij projektowanie od zera — w obu przypadkach wystarczy kilka kliknięć, aby utworzyć prosty układ.
Cedreo posiada również obszerną bibliotekę, która jest zawarta we wszystkich płatnych wersjach programu — nie są wymagane żadne dodatki! To ponad 7000 opcji umeblowania, dekoracji i materiałów.
Gdy Twój plan będzie już gotowy, wystarczy kilka kliknięć, aby stworzyć wysokiej jakości fotorealistyczne wizualizacje. Świetnie sprawdzają się, aby pomóc potencjalnym klientom, wyobrazić sobie gotowe wnętrze.
Wraz z rozwojem Twojego zespołu rośnie także Cedreo. Dodaj dodatkowych członków zespołu korzystających z planu Enterprise, aby wszyscy mogli współpracować nad projektami za pośrednictwem oprogramowania w chmurze.
Jeśli pojawią się pytania, łatwo znajdziesz pomoc. Oprócz samouczków wideo i szkoleń oferujemy indywidualne doradztwo – możesz skontaktować się ze swoim dedykowanym menedżerem ds. sukcesu i uzyskać spersonalizowaną pomoc. Zadbamy o przesłanie Ci szybkich odpowiedzi, aby Twój projekt nie uległ opóźnieniu.
Kluczowe cechy:
- Zaimportuj wszystkie istniejące plany
- Kopiuj i wykorzystuj projekty ponownie, aby zaoszczędzić czas
- Przeglądaj jednocześnie plany 2D i 3D
- Wydrukuj plany w skali
- Twórz projekty bez ograniczeń
- Zaawansowane możliwości projektowania elementów aranżacji takich jak sufity podwieszane lub dachy wielospadowe
- Dostosuj prawie każdy element projektu, od mebli po okna
- Kompatybilny z Windowsem i Macem
- Przetwarzanie w chmurze nie obciąża Twojego komputera
- Dekorowanie jednym kliknięciem pozwala zaoszczędzić mnóstwo czasu
- Twórz renderingi 3D w 5 minut
- Dostępne języki:
polski,hiszpański, francuski, angielski i niemiecki.
Cennik: Istnieje plan Cedreo dopasowany do każdego budżetu. Sprawdź nasze plany tutaj.
Zarejestruj darmowe konto i od razu zajmij się projektowaniem.
2. SketchUp Pro

SketchUp Pro to popularna platforma do modelowania 3D o szerokiej gamie zastosowań. Chociaż nie jest to typowe oprogramowanie do projektów, umożliwia tworzenie rzutów 2D i 3D.
SketchUp Pro dobrze sprawdza się podczas prezentacji projektu za pomocą interaktywnych przewodników 3D i animacji. Ponadto dzięki dodatkowym rozszerzeniom możesz stworzyć imponującą wizualizację 3D.
Za pomocą programu SketchUp Pro możesz tworzyć wysokiej jakości projekty i plany domów, ale jest on m.in trudny w obsłudze. Jest to szczególnie kłopotliwe, jeśli nie masz dużego doświadczenia w projektowaniu 3D CAD.
Szybko przekonasz się, że aby tworzyć na przykład renderingi 3D, konieczny będzie zakup dodatkowych opcji (które czasami mogą być tak drogie, jak sam SketchUp Pro!).
Kluczowe cechy:
- Zaawansowane narzędzia do modelowania 3D
- Tworzenie profesjonalnych rzutów 2D
- Katalog 3D z tysiącami obiektów
- Możliwość tworzenia renderów 3D przy zakupie dodatków
- Narzędzia do raportowania
- Interaktywne narzędzia do prezentacji
Cennik:
- Kup za 199 USD / rok – projekty osobiste
- Pro 299 USD / rok – użytkownicy profesjonalni
- Studio 1199 USD /rok – dla zaawansowanych przepływów pracy
3. AutoCAD

Przez długi czas to AutoCAD był złotym standardem dla profesjonalnych programów CAD. Architekci, inżynierowie i inni profesjonaliści używają go, aby tworzyć szczegółowy projekt rzutów 2D i 3D oraz do niemal wszystkiego.
Chociaż nie jest to typowe narzędzie przeznaczone do tworzenia projektów, zawiera różnorodne zestawy funkcji do tworzenia rysunków technicznych dla różnych dziedzin, także w języku polskim. Jeśli współpracujesz z dużą firmą budowlaną i musisz stworzyć szczegółowe plany wodno-kanalizacyjne, mechaniczne lub konstrukcyjne, AutoCAD będzie jednym z najlepszych wyborów.
Naszym zdaniem, dla większości budowniczych domów, fachowców od remontów i projektantów wnętrz AutoCAD może oferować zbyt wiele. Chociaż ma nieskończoną listę narzędzi, jest również trudne do nauczenia się i ma wysoką cenę.
Kluczowe cechy:
- Solidne opcje wsparcia klienta i profesjonalne doradztwo
- Mnóstwo dostępnych tutoriali i artykuły pomocowe
- Usprawniony przepływ pracy dzięki zestawowi narzędzi
- Aplikacje mobilne, dostępność w przeglądarce online
- Możliwość automatyzacji niektórych zadań rysunkowych
- Tworzenie rysunków technicznych dla różnych branż
Cennik
- 220 USD / miesięcznie lub 1775 USD / rok
- Tańsze opcje dla studentów
4. Floorplanner

Jeśli nie jesteś ekspertem CAD i potrzebujesz łatwego oprogramowania do tworzenia projektów, Floorplanner będzie dobrym wyborem. Jego intuicyjny interfejs jest prosty w obsłudze od samego początku, co pozwala szybko tworzyć i dekorować proste układy wnętrza. Floorplanner posiada również dużą bibliotekę projektów z mnóstwem różnych opcji mebli i dekoracji, które zaspokoją Twoją kreatywność i uatrakcyjnią wnętrze.
Jednak jego funkcje mogą być zbyt ograniczone dla budowniczych i fachowców od remontów. Aplikacja koncentruje się na układach wnętrz, dostępne są więc ograniczone narzędzia do tworzenia dachów i projektów krajobrazu. Poza tym renderowanie nie jest najbardziej realistyczne, szczególnie jeśli chodzi o tekstury i naturalne efekty świetlne.
Kluczowe cechy:
- Łatwe w użyciu narzędzia do układania
- Duża biblioteka 3D
- Twórz plany pięter 3D i renderingi 3D
- Oprogramowanie oparte na chmurze
- Aplikacje mobilne
Cennik dla osób fizycznych
- PODSTAWOWY: za darmo
- PLUS: 5 USD / miesięcznie
- PRO: 29 USD / miesięcznie
Ceny dla firm
- ZESPÓŁ: 59 USD / miesięcznie
- BIZNES: 179 USD / miesięcznie
- PRZEDSIĘBIORSTWO: 599 USD / miesięcznie
5. Planner 5D

Planner 5D to niedrogie narzędzie do tworzenia planów dla projektantów okazjonalnych i amatorów. Za swoją niską cenę, Planner 5D oferuje zaskakującą liczbę funkcji.
Interfejs użytkownika jest łatwy w obsłudze, a program umożliwia generować zarówno rzuty 2D, jak i wizualizacje 3D. Ma nawet opcje podglądania wnętrza w rzeczywistości rozszerzonej i wirtualnej.
Chociaż może to być fajna opcja, projektantom domów prawdopodobnie będzie brakować niektórych funkcji potrzebnych profesjonalnym budowniczym, takich jak łatwe eksportowanie i drukowanie planów w skali lub bardziej zaawansowane narzędzia pozwalające modyfikować projekt.
Kluczowe cechy:
- Wizualizacje HD
- Katalog projektów generowany przez użytkowników zawierający ponad 5000 pozycji
- Tryby projektowania wnętrz i rzutów 2D i 3D
- Meble mogą być automatyczne rozmieszczone
Cennik
- PODSTAWOWY: za darmo
- WERSJA PŁATNA: 6,99 USD / miesięcznie, 15,99 USD/ rok lub 24,99 USD za konto premium (na zawsze)
6. SmartDraw

SmartDraw jest programem do rysowania online, którego można używać nie tylko do tworzenia planów 2D. Służy do tworzenia różnorodnych wykresów, diagramów i planów. Ponadto integruje się z narzędziami innych firm, takimi jak Dysk Google i Office.
Jako program do tworzenia projektów i projektowania wnętrz, SmartDraw ma wiele przydatnych funkcji do tworzenia rzutów 2D, takich jak gotowe szablony, biblioteka symboli architektonicznych oraz możliwość rysowania i drukowania w skali.
Nie ma jednak narzędzi 3D. A ponieważ plany i wizualizacje 3D stają się coraz ważniejszą częścią profesjonalnych prezentacji projektów, SmartDraw nie spełnia oczekiwań większości profesjonalistów zajmujących się mieszkalnictwem.
Kluczowe cechy:
- Symbole architektoniczne dla systemów HVAC, wodno-kanalizacyjnych, elektrycznych itp.
- Intuicyjne narzędzia
- Także w formie aplikacji mobilnej
- Łatwe udostępnianie planów z poziomu przeglądarki dzięki zintegrowanym narzędziom do przechowywania w chmurze
Cennik:
- INDYWIDUALNY: 9,95 USD / miesięcznie
- ZESPOŁOWY: od 5,95 USD / miesięcznie za użytkownika (min. 5 użytkowników)
- FIRMOWY: od 2995 USD / rok
7. Edraw Max

Edraw Max to narzędzie do tworzenia diagramów podobne do SmartDraw. Umożliwia tworzenie szerokiej gamy wykresów, a nawet podstawowych planów 2D.
Ponieważ jednak nie jest to program ściśle oparty na planach, występują to pewne ograniczenia. Nie da się tworzyć rzutów 3D, fotorealistycznych wizualizacji ani niczego więcej niż podstawowe rzuty 2D.
Kluczowe cechy:
- Tworzenie map myśli, diagramów blokowych i innych
- Działa na komputerach Mac, Windows i Linux
- Łatwe w użyciu narzędzia „przeciągnij i upuść”.
- Gotowe szablony
Cennik
- INDYWIDUALNY: 99 USD / rok
- ZESPOŁOWY: 119 USD / rok za 2 urządzenia
8. Sweet Home 3D

Jeśli masz bardzo napięty budżet i potrzebujesz po prostu popracować nad kilkoma prostymi projektami na własny użytek, Sweet Home 3D może spełnić Twoje oczekiwania, jako darmowe narzędzie do planowania typu open source. W darmowej wersji oferuje niewielką bibliotekę gotowych funkcji projektowych.
Aby uzyskać dostęp do dodatkowych elementów projektu, należy zapłacić – w zamian uzyskasz dodatkowe funkcje. To wybór raczej dla początkujących amatorów, ponieważ obrazy 3D i cała platforma są nieco przestarzałe, więc większość fachowców będzie szukać lepszych rozwiązań gdzie indziej.
Kluczowe cechy:
- Kilka narzędzi do projektowania 3D
- Przełączanie pomiędzy widokami 2D i 3D
- Importowanie istniejącego projektu
- Adnotacje na planie
Cennik
- DARMOWA wersja z bardzo ograniczonymi opcjami
- Wiele płatnych opcji dostępu do dodatkowych bibliotek produktów
9. RoomSketcher

RoomSketcher to popularny program do planowania 2D i 3D z łatwym w użyciu interfejsem i wieloma narzędziami. Pozwala na stworzenie każdego projektu – od planów 2D ze znacznikami pomiarów po zdjęcia 3D w jednym programie.
Posiada jednak pewne ograniczenia – niektórzy projektanci woleliby wizualizacje wyższej jakości z bardziej realistycznymi teksturami i innymi efektami oświetlenia. Inni są sfrustrowani faktem, że nawet w przypadku płatnych planów dostępne są ograniczone możliwości i często trzeba wydać więcej pieniędzy, aby uzyskać dostęp do dodatkowych funkcji.
Kluczowe cechy:
- Tworzenie planów 2D i 3D
- Działa na komputerach PC, Mac i urządzeniach mobilnych
- Pobieranie planów w skali
- Obrazy 3D i instrukcje
Cennik
- VIP: 49 USD / rok
- PRO: 99 USD / rok
10. Roomle

Roomle powstał przede wszystkim po to, aby planować rozmieszczenia umeblowania i prezentować produkty meblowych. W zasobach Roomle znajduje się biblioteka mebli, a sam system daje możliwość planowania pomieszczeń 2D i 3D oraz tworzenie interaktywnego planu piętra.
Chociaż może to działać dobrze w przypadku niektórych dekoratorów wnętrz, niejeden architekt zajmujący się planowaniem i budownictwem wymaga dodatkowych funkcjonalności — drukowania planów 2D w skali, narzędzi do projektowania krajobrazu, renderowania zewnętrznego itp.
Kluczowe cechy:
- Narzędzie proste w użyciu
- Działa na wielu urządzeniach
- Interaktywne plany 3D
- System oparty na chmurze
Cennik
- Darmowy program do użytku prywatnego i komercyjnego
Jaki program do projektowania mieszkań i wizualizacji wnętrz jest najlepszy?
Niezależnie od tego, czy jesteś architektem, fachowcem od remontów czy ekspertem od projektowania wnętrz, najlepsza aplikacja do planowania w 3D w czasie rzeczywistym powinna zaoszczędzić Twój czas, pieniądze i przeciwności.
Coraz więcej specjalistów z branży mieszkaniowej decyduje się na intuicyjny program ułatwiający projektowanie domów i mieszkań Cedreo. Inne darmowe programy nie mogą przebić jego wyjątkowej kombinacji zaawansowanych funkcji, łatwych w użyciu narzędzi i oszałamiających fotorealistycznych wizualizacji.
Chcesz sprawdzić, jak to działa? Skorzystaj z okazji do zmiany już dziś i dołącz do profesjonalistów z branży mieszkaniowej, którzy już rozwijają swoją działalność z Cedreo. Wypróbuj już teraz w wersji darmowej!