Comunique a sua visão com plantas baixas em 3D
Crie plantas baixas 3D online de forma fácil para ter aprovações de clientes mais rápidas
Desenhe facilmente a sua planta de casa em 3D
Crie e personalize a sua planta baixa 3D para casas online

Gere renderizações fotorrealistas em 3D de plantas baixas

O Cedreo fornece tudo o que você precisa para criar plantas baixas arquitetônicas em 3D
Com plantas baixas em 3D, você pode mostrar todos os detalhes aos seus clientes – fluxo de tráfego, portas, janelas, revestimentos de piso, cores de parede, móveis, decoração e muito mais.
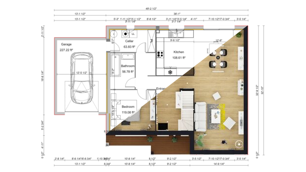
As vistas superiores da planta baixa em 3D ajudam os clientes a verem como cada cômodo se conecta com os demais e quanto espaço eles terão quando os seus móveis estiverem no lugar.
Por que você precisa de uma planta 3D?
Você pode usar plantas baixas em 3D para compartilhar o “quadro geral” com os clientes, bem como os detalhes que tornam o seu design único. Uma planta baixa em 3D ajuda você a dar vida ao seu projeto de design de casa e fechar negócios com mais rapidez.
- Comunique a sua visão aos clientes, tendo uma comunicação mais clara
- Ajude os clientes a imaginarem como será a aparência de cada sala ou cômodo (bem como os detalhes, como pisos) quando concluído
- Evite mal-entendidos sobre o layout e o estilo geral da residência, sem precisar de inúmeras ferramentas
As plantas baixas de casas em 3D ajudam construtoras, profissionais de reforma, arquitetos e quem lida com o design de interiores a reduzir o número de revisões e encurtar o processo de aprovação.


Personalize a sua planta baixa 3D facilmente
Você pode visualizar o projeto em 3D enquanto desenha a sua planta baixa em 2D para tornar a fase de desenho ainda mais fácil através de imagens. Ou ainda usar modelos para facilitar o seu trabalho.
Personalize o estilo da casa, materiais de revestimento, texturas e cores, bem como móveis e decoração.
Com uma planta baixa em 3D, você pode mostrar:
- Paredes, divisórias, janelas e portas
- Quartos mobiliados e não mobiliados, bem como sala de estar
- Vários revestimentos de piso realistas para cada quarto
- Layout interno e externo
- Uma variedade de vistas da casa (girando a planta baixa)

Renderizações 3D irresistíveis de plantas baixas que fecham negócios
Com o Cedreo, é fácil criar múltiplas visualizações de suas plantas baixas em 3D. Em menos de 5 minutos, você pode gerar plantas baixas em 3D profissionais que transmitem a sua proposta de valor aos clientes e os ajudam a entender como será o espaço deles.

Vista superior da planta 3D com detalhes externos
Mostre aos seus clientes uma visão aérea que inclui o gramado, o pátio e as ideias de paisagismo externo.

Vista superior da planta baixa 3D sem fundo
Esta visualização permite que você se concentre no layout da casa no aplicativo. A vista superior da sua planta 3D pode ser totalmente mobiliada e decorada, ou sem mobília.

Planta 3D isométrica
Escolha a vista isométrica para ver as cores das paredes, janelas e portas, e amplie áreas específicas para observar detalhes e texturas.

Plantas comerciais em 3D
As plantas baixas comerciais em 3D ajudam os clientes a visualizarem o layout e o fluxo de espaços comerciais, incluindo plantas baixas de varejo, escritórios e hotéis. Gerando o negócio dos sonhos!

Planta baixa 3D de um quarto individual
Você pode criar uma planta baixa para uma casa inteira ou apenas para um único cômodo ou espaço. Se você está se concentrando apenas no porão ou na cozinha, pode criar uma planta baixa em 3D apenas para o local que está reformando. Tudo focado na sua realidade!

Plantas de casas 3D para quaisquer residências
Construir uma casa atípica, como uma tiny house ou uma casa contêiner? Você pode criar plantas baixas em 3D para qualquer tamanho/forma de espaço, facilmente.
Recursos práticos para melhorar os seus projetos de planta baixa 3D
Desenhe a planta baixa em 2D e visualize simultaneamente em 3D. Adicione móveis e decoração e, com um único clique, gere a renderização da sua planta baixa em 3D, repassando uma imagem profissional.

Acessar as suas plantas baixas 3D online
O Cedreo é 100% online, então você pode alterar o seu design de onde estiver. Tudo o que você precisa é de um laptop e conexão com a internet.

Selecionar o melhor ângulo
Com um clique do mouse, você pode girar o design da sua casa para mostrar múltiplas perspectivas.

Aumentar ou diminuir o zoom
Você pode criar visualizações para mostrar a planta baixa completa ou ampliar para a visualização de salas e detalhes específicos.

Salvar pontos de vista
Depois de posicionar a câmera, você pode salvar o ponto de vista e acessá-lo posteriormente e gerar outra renderização exatamente com a mesma perspectiva, seja do interior ou do exterior.

Criar uma renderização de planta baixa 3D em minutos
Gere a renderização da planta baixa 3D com apenas um clique e veja o andamento da sua renderização em tempo real.

Continuar trabalhando durante a criação da renderização
Você pode continuar trabalhando em seu projeto enquanto o Cedreo gera sua renderização 3D.

Selecionar um formato
Baixe a sua visualização 3D em um dos dois formatos: HD (1280×720) ou Full HD (1920×1080).

Baixar a renderização das plantas baixas em 3D
Após gerar a renderização da planta 3D, você pode acessá-la na galeria do seu projeto e baixá-la como JPG ou PDF, em alta qualidade e sem precisar de app.
Perguntas frequentes
Como faço para converter plantas baixas 2D em 3D?
Com um software de planta baixa como o Cedreo, você pode visualizar simultaneamente desenhos 2D em 3D. Você pode alternar entre a visualização que deseja editar com apenas um clique.
O Cedreo fornece símbolos de planta pré-construída?
Os símbolos da planta baixa mostram diferentes elementos em uma planta 2D, além de elementos 3D. O Cedreo tem uma biblioteca de 400 símbolos de plantas baixas que ajudam os empreiteiros a saberem exatamente onde estarão os diferentes elementos na nova casa, antes e durante a construção da propriedade.
Quanto custa o Cedreo?
O Cedreo tem uma oferta gratuita que permite criar um projeto e 5 renderizações com móveis, materiais e símbolos limitados. A oferta Pessoal é de US$ 99/projeto com acesso ilimitado às bibliotecas de objetos e materiais. A oferta Profissional custa US$ 119/mês, o que oferece projetos ilimitados para um único usuário. Finalmente, há a oferta Empresarial, que custa US$ 149/por usuário/por mês e inclui recursos avançados.
Como faço para desenhar uma planta baixa em 3D?
Você pode começar a desenhar em 2D do zero ou importar uma planta baixa e começar a traçar. A sua planta baixa 2D ganhará vida em 3D em uma janela separada. Você pode então editar em 3D para adicionar diferentes elementos, como móveis, iluminação, revestimentos de materiais e janelas/portas.