Document essentiel pour toute demande d’autorisation de travaux, le plan de masse représente avec précision l’implantation d’un projet sur la parcelle afin de vérifier sa conformité aux règles d’urbanisme. Comment le réaliser ? Quels sont les éléments indispensables à inclure ? Quel outil utiliser pour le concevoir efficacement ? Dans ce guide complet, nous vous expliquons tout ce qu’il faut savoir sur le plan de masse : sa définition, ses obligations réglementaires, les outils disponibles et les meilleures pratiques pour le réussir.
Ce qu’il faut retenir :
- Un plan de masse est une représentation graphique à l’échelle d’un terrain et de ses constructions existantes et futures.
- Il est obligatoire pour toute demande de permis de construire ou déclaration préalable.
- Il doit respecter des règles précises définies par le Code de l’Urbanisme et le Plan Local d’Urbanisme (PLU).
- Il peut être réalisé facilement et rapidement avec un logiciel spécialisé comme Cedreo.
Qu’est ce qu’un plan de masse ?
Définition du plan de masse

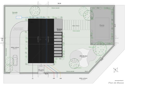
Représentation graphique en vue aérienne d’une parcelle de terrain, le plan de masse doit inclure l’implantation des constructions existantes et projetées, les accès, et les réseaux. Obligatoire pour l’instruction d’un dossier de permis de construire (PC) ou d’une déclaration préalable de travaux (DP), il sert aux services d’urbanisme pour vérifier que le projet respecte les exigences du Plan Local d’Urbanisme (PLU) et du Code de l’Urbanisme.
Différence entre plan de masse d’un terrain et plan de situation
Le plan de masse se concentre sur les détails de la parcelle, précisant l’implantation exacte des bâtiments, leurs dimensions, les distances aux limites du terrain et les raccordements aux réseaux.
Le plan de situation positionne quant à lui la parcelle dans un territoire plus global, pour contextualiser son emplacement au sein du quartier et de la commune.
Réglementation d’un plan de masse : ce que dit la loi
Quels éléments doit-il contenir ?
Le plan de masse DP2 (pour une déclaration préalable) ou PCMI2 (pour un permis de construire de maison individuelle) doit répondre aux exigences définies dans l’article L431-2 du Code de l’Urbanisme.

Il doit être coté dans les trois dimensions et impérativement inclure les informations suivantes :
- Les constructions existantes et projetées (dimensions, hauteur, emprise au sol).
- Les limites de la parcelle (bornage, distances aux terrains voisins).
- Les réseaux et accès (eau, réseau électrique, assainissement, réseau de distribution, voirie).
- L’altimétrie et le relief (cotes NGF pour le terrain naturel).
- L’orientation et l’échelle (indication du Nord, légende).
Pourquoi est-il obligatoire pour un permis de construire et une DP ?
Le plan masse est un document essentiel pour toute demande d’autorisation d’urbanisme. Il permet aux services municipaux de vérifier la conformité du projet aux règles locales et d’anticiper les impacts du projet sur son environnement.
Combien coûte la création d’un plan de masse ?
Le budget à prévoir dépend de la manière dont il va être réalisé. Il existe deux options : faire appel à un professionnel ou le créer vous-même avec un logiciel adapté.
Externaliser cette tâche en confiant le travail à un dessinateur en bâtiment ou un architecte permet d’obtenir un plan conforme et prêt à être intégré dans un dossier d’urbanisme. Mais, cette solution représente un budget conséquent, d’autant plus que chaque modification nécessitera une nouvelle intervention.
Pour les professionnels de la construction et maîtres d’œuvre, l’investissement dans un logiciel tout-en-un permet de rentabiliser rapidement la création des plans. Une fois votre projet modélisé, vous pouvez exporter en quelques clics tous les documents nécessaires, sans devoir sous-traiter cette tâche. Gérer en interne la conception des plans de masse permet ainsi un gain de temps et une maîtrise totale du projet.
Avec un outil professionnel dédié comme Cedreo, vous centralisez tous vos plans 2D et 3D en un seul endroit et pouvez produire des documents conformes sans frais supplémentaires.
Quels outils pour faire un plan de masse ?
Plusieurs solutions existent, allant des logiciels gratuits aux plateformes spécialisées conçues pour les professionnels du bâtiment.
Les logiciels gratuits pour les esquisses simples

Si vous souhaitez réaliser un premier croquis ou une ébauche rapide de votre projet, des outils gratuits permettent de créer des plans en 2D et 3D. Ces solutions présentent rapidement des limites : elles n’intègrent pas les échelles réglementaires, les cotations précises ou la gestion des altimétries, essentielles pour toute démarche administrative.
Les logiciels de dessin assisté par ordinateur (DAO/CAO)

Des solutions comme AutoCAD offrent une grande liberté de conception et permettent de tracer des plans techniques précis. Mais, ces logiciels requièrent des compétences avancées et ne sont pas spécialement conçus pour répondre aux normes urbanistiques et aux exigences des services administratifs.
Les logiciels spécialisés pour la construction

Les outils dédiés, comme Cedreo, sont pensés pour les constructeurs, maîtres d’œuvre et professionnels de la construction. Ils permettent de travailler en 2D et 3D simultanément, de générer automatiquement les cotations, annotations et échelles conformes, et d’exporter les documents aux formats réglementaires. Une solution qui vous garantit un gain de temps considérable et évite les erreurs qui pourraient ralentir l’instruction du dossier.
Comment choisir le bon outil ?
- Si vous réalisez un simple croquis, un logiciel gratuit peut suffire.
- Si vous avez besoin d’une précision technique, un logiciel DAO/CAO est plus adapté mais nécessite une expertise.
- Si vous recherchez une solution tout-en-un et intuitive, Cedreo est idéal pour optimiser la gestion des projets et générer rapidement des plans de masse conformes.
Comment faire un plan de masse ?
Le plan masse doit représenter avec précision l’implantation du projet sur le terrain, en intégrant l’ensemble des contraintes réglementaires. Une mission qui peut sembler complexe de premier abord, mais selon le logiciel utilisé, cette tâche devient rapide et intuitive.

La preuve avec Cedreo ! En seulement 8 étapes vous êtes capable d’obtenir un plan conforme :
- Délimiter la parcelle à partir d’un plan cadastral ou d’un relevé géomètre.
- Tracer les lignes de recul pour respecter les zones constructibles.
- Gérer l’altimétrie et représenter les reliefs avec des points et lignes d’élévation.
- Positionner le bâtiment et ajuster les aménagements extérieurs (terrasse, abri de jardin, piscine).
- Ajouter les zones fonctionnelles (parkings, allées, plantations, espaces verts).
- Modéliser un terrain en pente avec des talutages et murs de soutènement.
- Insérer les cotations et annotations pour garantir la conformité administrative.
- Exporter le plan à l’échelle et prêt à être intégré à un dossier d’urbanisme.
Conseils pour réussir son plan de masse côté
Un plan de masse coté bien structuré facilite l’instruction du dossier et offre une meilleure visibilité du projet, aussi bien pour les autorités que pour les clients. Voici quelques conseils pour garantir un rendu conforme et efficace.

- Assurez-vous d’inclure toutes les informations essentielles : dimensions des bâtiments, distances aux limites du terrain, altimétrie, réseaux et accès. Chaque élément doit être clairement identifié pour éviter tout refus de dossier administratif.
- Pensez au plan de masse en 3D pour une meilleure compréhension : grâce aux cotes NGF, vous pouvez représenter les dénivelés du terrain et assurer une implantation optimale du projet.
- Automatisez la mise en forme avec un logiciel de conception de maisons : plutôt que de tout tracer manuellement, un outil comme Cedreo permet de générer automatiquement les cotations et annotations, garantissant un gain de temps et une conformité immédiate.
- Optimisez la lisibilité du plan : utilisez une échelle adaptée (1/500e ou 1/1000e), ajoutez des légendes claires et veillez à ce que les annotations soient compréhensibles par les services d’urbanisme.
Focus sur plan de masse architecture pour le permis de construire et la DP
Un plan de masse est exigé dans deux types de dossiers d’urbanisme : la déclaration préalable de travaux (DP2) et le permis de construire (PCMI2). Ces documents permettent aux services d’urbanisme de vérifier l’intégration du projet et son respect des règles locales.

Quand faut-il fournir un DP2 ou un PCMI2 ?
- Déclaration préalable (DP2) : pour des travaux de faible ampleur comme une extension de moins de 20 m², la rénovation d’une façade changeant l’aspect extérieur, la création d’une clôture, piscine ou d’abris de jardin…
- Permis de construire (PCMI2) : pour les nouvelles constructions ou extensions de plus de 20 m², nécessitant une analyse plus poussée du projet.
Les différences entre DP2 et PCMI2
Les exigences varient selon la nature du projet.
| Éléments à inclure | DP2 | PCMI2 |
| État existant du terrain | ✅ | ✅ |
| Constructions projetées (dimensions, distances) | ✅ | ✅ |
| Accès et réseaux (eau, électricité, assainissement) | ✅ | ✅ |
| Altimétrie et relief | ❌ | ✅ |
| Modifications du terrain naturel | ❌ | ✅ |
Un plan de masse DP2 est plus simple, tandis qu’un plan PCMI2 doit être plus détaillé, incluant des éléments tels que l’altimétrie et les aménagements extérieurs.
Avec un logiciel comme Cedreo, vous pouvez réaliser rapidement un plan conforme aux exigences des services d’urbanisme que ce soit pour un DP2 ou un PCMI2.
Exemples d’erreur à éviter
Pour éviter les retards ou un rejet du dossier par les services d’urbanisme, voici quelques erreurs courantes à éviter :
- Mesures approximatives : toutes les cotes doivent être précises.
- Plan mal orienté ou échelle inadaptée, ce qui peut entraîner un rejet du dossier.
- Absence de distinction entre l’existant et le projeté, rendant le plan difficile à interpréter.
FAQ – Questions fréquentes
Où télécharger un plan de masse ?
Les plans cadastraux peuvent être téléchargés sur le site du cadastre.gouv.fr. Pour un plan de masse détaillé, un logiciel pour les constructeurs et maîtres d’oeuvre est recommandé.
Qui fournit le plan de masse ?
Le plan de masse peut être réalisé et fourni par :
- Un géomètre-expert, garantissant une précision et une conformité réglementaire.
- Un architecte ou maître d’œuvre, souvent dans le cadre d’un projet de construction.
- Un logiciel en ligne comme Cedreo, qui permet de générer un plan conforme sans compétences avancées en dessin technique.
Qu’est-ce qu’un plan de masse coté dans les 3 dimensions ?
Un plan de masse 3D inclut les reliefs et altimétries du terrain, essentiels pour visualiser l’impact des pentes et éviter les erreurs de conception.
Un plan de masse coté en 3D représente :
- Les bâtiments et aménagements avec leurs hauteurs.
- Le relief du terrain, grâce aux cotes NGF pour indiquer les altitudes précises.
- Les raccordements aux réseaux et accès, intégrant l’ensemble des infrastructures.Ce type de plan est indispensable pour les terrains en pente et les constructions nécessitant une étude altimétrique.
Comment avoir un plan de masse gratuit ?
Il est possible de dessiner un plan basique avec un logiciel gratuit, mais pour un dossier administratif valide, un outil spécialisé comme Cedreo est recommandé.
Quel est le prix d’un plan de masse ?
- Géomètre-expert : 500 à 1 500 € selon la complexité.
- Architecte : 300 à 800 €.
- Logiciels spécialisés : à partir de 50 € selon les fonctionnalités.
Quelle est la différence entre le plan de masse, le plan de situation et le plan cadastral ?
- Plan de masse : représente le projet de construction sur une parcelle avec ses accès et réseaux.
- Plan de situation : situe le terrain dans son environnement global (commune, quartier).
- Plan cadastral : document administratif montrant les limites de propriété et références cadastrales.
Qui peut réaliser un plan de masse ?
Un géomètre-expert, un architecte, ou un maître d’œuvre peut le réaliser. Des logiciels comme Cedreo permettent également de générer un plan de masse précis sans intervention extérieure.
Comment faire un beau plan masse ?
- Utiliser une échelle adaptée (1/500e ou 1/1000e).
- Soigner la lisibilité avec des annotations claires et bien placées.
- Ajouter des couleurs et des textures pour une meilleure compréhension du projet.
- Privilégier un rendu 3D pour visualiser l’impact du projet sur son environnement.Un logiciel comme Cedreo permet d’obtenir un plan à la fois technique et esthétique pour les présentations aux clients et aux administrations.
Un plan de masse est-il obligatoire pour tous les projets ?
Oui, dès lors qu’il y a modification de l’aspect extérieur d’un bâtiment ou une nouvelle construction. Il est nécessaire pour :
- Les permis de construire (PC).
- Les déclarations préalables de travaux (DP).
- Certains projets d’extension ou d’aménagement nécessitant une validation des autorités locales.
Quel logiciel en ligne utiliser pour dessiner un plan de masse ?
Parmi les solutions adaptées aux professionnels, Cedreo est un logiciel de plan de masse tout en un intuitif conçu pour les constructeurs et maîtres d’œuvre, permettant une création rapide et conforme.